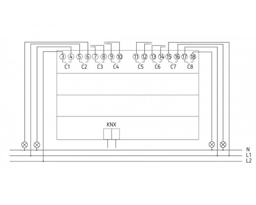
RM 8 H KNX
Function description
- 8-way high-performance switching actuator FIX2
- Bistable relays
- Switching capacity 25 A
- LED switching status display for each channel
- Manual operation on device
- Switching functions: On/Off, pulse, On/Off delay, staircase light with warning
- Logical links: e.g. lock, AND, release, OR
Reviews: 0
