BZ 142-3
Function description
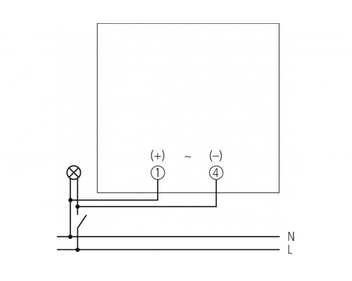
- Hour counter with synchronous motor drive
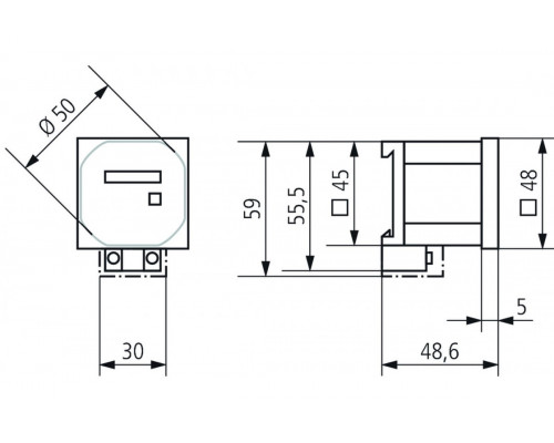
- Plug-in base with quick fastening for 35 mm profile rails (DIN EN 60 715)
- Screw terminals
- Contact protection to comply with accident prevention regulation BGV A3
- Housing colour: anthracite
- Versions for direct voltage with quartz-controlled stepper motor
- Progress display
Reviews: 0
